kohler marine generator parts diagram

Parts for Kokler Marine 5E 73E 5ECD 73ECD generators. Discontinued Product 221315 Paint Kohler Cream Beige 1 gallon can DISC.


Sea Water Pump Kohler Marine Generator

221250 VOID Plate MX DISC.

. Schematic diagrams are used to understand the relative position of parts and to provide graphical instruction to assist in taking apart and rebuilding mechanical assemblies. Operate the generator set without a functioning carbon monoxide detector. Our factory-trained and certified technicians are equipped with the knowledge and latest diagnostic and repair tools to keep you up and running.

Engine Drive Parts. Get the technical documents you need including. Stocking thousands of OEM aftermarket marine parts by top suppliers.

Be especially careful if operating the generator set when moored or anchored under calm conditions because gases. 5E4EF 73E6EF 5ECD4EFCD--Low CO 73ECD6EFCD--Low CO TP-5987 206e. Field service engineers support critical.

25 Hp Kohler Engine Wiring Schematic - Wiring Diagram Schemas. Kohler GENERATOR Exploded View parts lookup by model. Guarantee long life and top efficiency to your diesel Kohler engine with our original spare parts.

In this section you will find. Hide Filters Show Filters Brand API Marine 1. The Right Parts Shipped Fast.

It is EASY and FREE. Generator engine kohler bracket marine parts kw 4cz mounting cz mount. Wiring Diagram is a.

5E73E -5ECD73ECD - 4EF6EF -. Will cause severe injury or death. Kohler Generator Parts.

Kohler Generator Parts Diagrams CH1000-2025. Find the exact marine boat parts you need online. Gx360 bestseller 13hp cooled kohler 65cz23 parts manual.

29 Kohler 5e Marine Generator Parts Diagram - Wiring. Complete exploded views of all the major manufacturers. Oil filters Fuel filters Air filters Starters V.

Kohler 5kw fueled 5ekd heat generators generac fuels. KOHLER Marine Generators provide backup prime and continuous power solutions you need available in diesel gas and LP configurations. DANGER Servicing the generator set when it isoperating.

Operate the generator set only when all guards and electrical enclosures are in place. Close to View Results Filter. Remove This Item Price.

Fix it fast with OEM parts list and diagrams. This manual lists service replacement parts for 5E73E and 5ECD73ECD. Discontinued Product 221284 Paint Gallon Gold DISC.

Kohler Generators Parts Lookup Diagrams Kohler Generators Parts Lookup Diagrams Kohler Generators 33. Marine Generator Sets Models. Up to 4 cash back The large inventory of replacement parts for your Kohler generator along with anything else needed to maintain or upgrade every square inch of your boat can be found.

Schematic diagrams wiring diagrams and specification sheets for your Kohler Power generator.


Kohler 14ekozd 14kw Marine Generator Diesel Fueled


I Have A New Kohler Marine Generator 7 5 Ekd With 45 Hours That Is Now Overheating 1 Circulating Pump Impeller


Generator Parts Honda Ex4000s Impex Japan


Kohler 13efozd 13 Kw Marine Diesel Generator 60 Hz Ebay


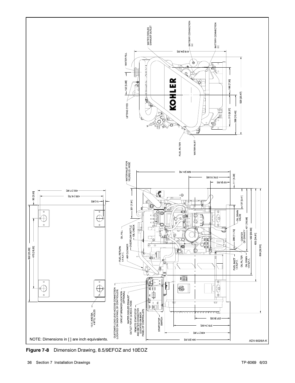
9efozd Parts Manual Pdf Valve Washer Hardware


Powermate Formerly Coleman Pm0496504 18 Parts Diagram For Generator Parts


Kohler Marine Generator Parts Only Auction 0182 3019459 Grays Australia


20 Kw Diesel Generator Details Engine Power Source


Kohler 7 5r Manuals Manualslib


Kohler Command 18 25hp Vertical Crankshaft Serv Parts Manual Cv18 Cv20 Cv22 Cv25 Ebay


Kohler Marine Generator Sets 11efoz 13eoz User Manual Page 46 92 Also For Marine Generator Sets 4efoz 5eoz Marine Generator Sets 20efoz 24eoz Marine Generator Sets 40efoz 50eoz Marine Generator Sets 3 5efoz 4eoz Marine


Kohler Marine Generator Sets 11efoz 13eoz User Manual Page 56 92 Also For Marine Generator Sets 4efoz 5eoz Marine Generator Sets 20efoz 24eoz Marine Generator Sets 40efoz 50eoz Marine Generator Sets 3 5efoz 4eoz Marine


User Manual And Parts Catalog Paguro Power Generators Diesel Maritimus The Yachtshop All Rights Reserved C 1997 2022


Kohler Engine K301 47764 Ereplacementparts Com


Kohler 5e Generator Raw Water Pump Problem Generator Was Running Fine When Cooling Water Stopped Water Filter And


2008 Kohler 5ecd Gas Generator For Sale The Hull Truth Boating And Fishing Forum


Water Cooling 83kw 112hp 6 Cylinders 6bta5 9 Gm83 Marine Diesel Engine Generator Buy Water Cooling 83kw 112hp 6 Cylinder 6bta5 9 Gm83 Diesel Engine Generator Genuine Dcec Agency For Marine Engine Type 6bta5 9 Gm83 Used

Iklan Atas Artikel

Iklan Tengah Artikel 1

Iklan Tengah Artikel 2

Iklan Bawah Artikel